Содержание
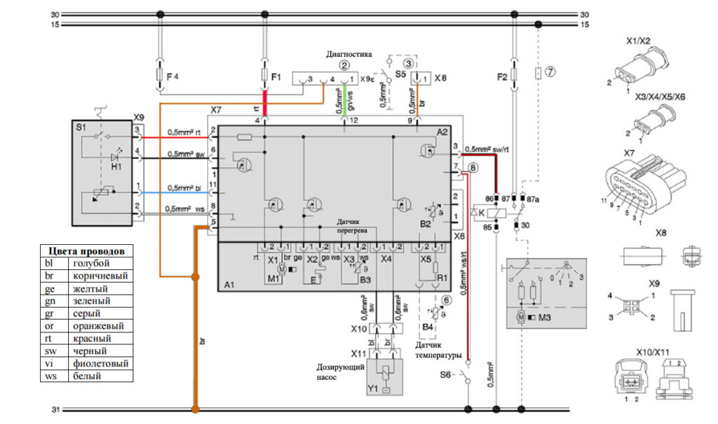
Назначение разъёмов Webasto Air Top Evo 3900
Х1 = Нагнетатель воздуха
Х2 = Штифт накаливания/датчик пламени
Х3 = Датчик перегрева
Х4 = Дозирующий насос
Х5 = Выносной датчик температуры или нагрузочной сопротивление
Х6 = D+ и дополнительное устройство (как правило ADR исполнение)
Х7 = Кабельный жгут блока управления
Диагностика и поиск неисправностей
Для проведения компьютерной диагностики автономного отопителя Webasto Air Top Evo 3900 необходима программа Webasto Thermo Test и любой K-line адаптер, который подключается к 12мому пину линии диагностики зелёно-белый провод 12ти пинового разъёма отопителя.
Порядок подключения (последовательность) очень важен:
1 – подключаем линию диагностики вебасто-адаптер
2 – подключаем питание K-line адаптера
3 – подключаем USB разъём в ноутбук
4 – Запускаем программу диагностикм Webasto Thermo Test
При появлении неисправности на пульте будет высвечиваться соответствующий код (блинк код), мигать зелёная стрелочка. После пяти (5) быстрых миганий, появится код ошибки в виде длинных миганий. Количество миганий будетсоответствоватьошибке.
Пример чтения кода неисправности. На видео 5 быстрых миганийи 3 длинных – ошибка F03.
F 03- падение напряжения ниже допустимого или повышение выше допустимого.
Расшифровка ошибки Webasto Air Top 3900
Коды ошибок WEBASTO AirTop 3900
F 00 – неисправен блок управления
F 01 – 2 неудачных попытки пуска или не образуется пламя
F 02 – обрыв пламени (повторяется более 3 раз)
F 03 – падение напряжения ниже допустимого или повышение выше допустимого
F 04 – преждевременное распознавание пламени
F 05 – обрыв цепи или замыкание датчика пламени (только АТ 2000 SТ бензин!)
F 06 – обрыв цепи или короткое замыкание датчика температуры
F 07 – обрыв цепи или короткое замыкание дозирующего насоса
F 08 – обрыв цепи или короткое замыкание мотора нагнетателя воздуха, перегрузка или блокировка крыльчатки нагнетателя воздуха
F 09 – обрыв цепи или короткое замыкание штифта накаливания
F 10 – перегрев
F 11 – обрыв цепи или короткое замыкание ограничителя нагрева
F 12 – блокировка отопителя: вынуть предохранитель и вставить его обратно
F 14 – неправильное положение датчика перегрева
F 15 – обрыв цепи или короткое замыкание потенциометра на органе управления


