Содержание
Схема электрооборудования автомобиля ВАЗ 2110
- блок-фара;
- датчики износа передних тормозных колодок;
- датчик включения электродвигателя вентилятора;
- электродвигатель вентилятора системы охлаждения двигателя;
- звуковой сигнал;
- генератор ВАЗ-2110;
- датчик уровня масла;
- блок управления электромагнитным клапаном карбюратора;
- контроллер отопителя;
- выключатель клапана рециркуляции;
- лампа подсветки рычагов управления отопителем;
- коммутатор;
- концевой выключатель карбюратора;
- датчик контрольной лампы давления масла;
- свечи зажигания;
- электромагнитный клапан карбюратора;
- датчик указателя температуры охлаждающей жидкости;
- датчик-распределитель зажигания;
- катушка зажигания;
- стартер;
- электродвигатель вентилятора отопителя;
- дополнительный резистор электродвигателя отопителя;
- датчик скорости;
- выключатель света заднего хода;
- микромоторедуктор привода заслонки отопителя;
- клапан рециркуляции;
- датчик уровня тормозной жидкости;
- колодки для подключения электродвигателя омывателя заднего стекла;
- аккумуляторная батарея;
- электродвигатель смывателя ветрового стекла;
- датчик уровня омывающей жидкости;
- датчик уровня охлаждающей жидкости;
- моторедуктор очистителя ветрового стекла;
- монтажный блок;
- колодки для подключения жгута предупредительного света;
- переключатель наружного освещения;
- комбинация приборов;
- выключатель заднего противотуманного света;
- контрольная лампа противотуманного света;
- контрольная лампа обогрева заднего стекла;
- часы ВАЗ-2110;
- выключатель обогрева заднего стекла;
- подрулевой переключатель;
- колодка для переключения проводов при установке блок-фар другого типа;
- регулятор освещения приборов;
- выключатель зажигания;
- колодки для подключения жгута проводов очистителей фар;
- розетка для переносной лампы;
- плафон индивидуального освещения салона;
- выключатель стоп-сигнала;
- плафон освещения салона;
- блок бортовой системы контроля;
- датчик указателя уровня топлива;
- выключатель аварийной сигнализации;
- датчик ремня безопасности водителя;
- прикуриватель;
- лампа подсветки пепельницы;
- выключатель лампы освещения вещевого ящика;
- колодка для подключения бортового компьютера;
- лампа освещения вещевого ящика;
- боковые указатели поворота;
- выключатели в стойках передних дверей;
- выключатели в стойках задних дверей;
- выключатель контрольной лампы стояночного тормоза;
- фонарь освещения багажника;
- датчик температуры для системы отопления;
- наружные задние фонари;
- внутренние задние фонари;
- фонари освещения номерного знака;
- элемент обогрева заднего стекла;
- колодка для подключения дополнительного стоп-сигнала.
Схема подогрева задних сидений для модели (VAZ) ВАЗ-2110-12
Электросхема очистителя фар авто
Блокировка замков автомобиля – электросхема
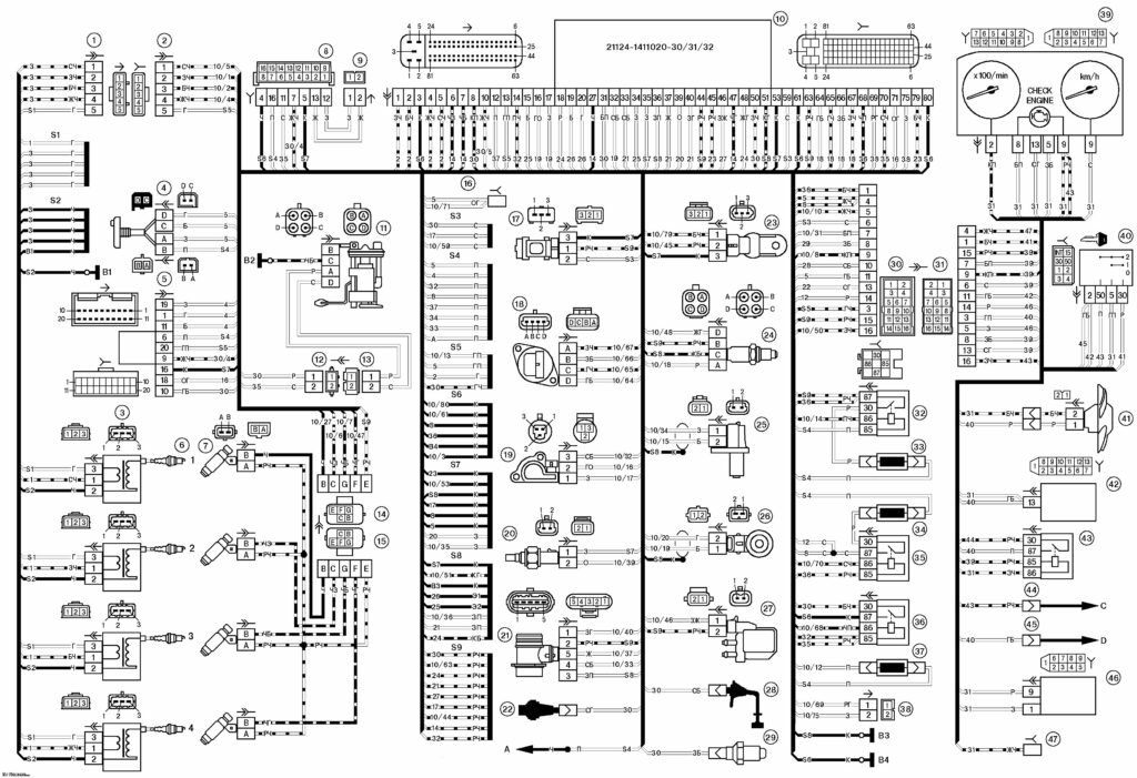
Схема системы управления двигателем ВАЗ с контроллером BOSCH – ЭСУД 21104 1.6 16V
1 – колодка жгута проводов катушек зажигания к жгуту системы зажигания;
2 – колодка жгута системы зажигания к жгуту проводов катушек зажигания;
3 – катушки зажигания;
4 – датчик сигнализатор иммобилизатора;
5 – блок управления иммобилизатора;
6 – свечи зажигания;
7 – форсунки;
8 – колодка диагностики;
9 – колодка жгута системы зажигания к жгуту салонной группы АБС;
10 – контроллер; 11 – электробензонасос;
12 – колодка жгута системы зажигания к жгуту датчика уровня топлива;
13 – колодка жгута датчика уровня топлива к жгуту системы зажигания;
14 – колодка жгута системы зажигания к жгуту форсунок;
15 – колодка жгута форсунок к жгуту системы зажигания;
16 – колодка жгута системы зажигания к жгуту боковых дверей;
17 – датчик скорости;
18 – регулятор холостого хода;
19 – датчик положения дроссельной заслонки;
20 – датчик температуры охлаждающей жидкости;
21 – датчик массового расхода воздуха;
22 – датчик контрольной лампы давления масла;
23 – датчик фаз;
24 – датчик кислорода;
25 – датчик положения коленчатого вала;
26 – датчик детонации;
27 – электромагнитный клапан продувки адсорбера;
28 – датчик уровня масла;
29 – датчик указателя температуры охлаждающей жидкости;
30 – колодка жгута системы зажигания к жгуту панели приборов;
31 – колодка жгута панели приборов к жгуту системы зажигания;
32 – реле зажигания;
33 – предохранитель реле зажигания;
34 – предохранитель цепи питания электробензонасоса;
35 – реле электробензонасоса;
36 – реле электровентилятора;
37 – предохранитель цепи питания контроллера;
38 – колодка жгута системы зажигания к соединителю кондиционера;
39 – комбинация приборов;
40 – выключатель зажигания;
41 – электровентилятор системы охлаждения;
42 – блок бортовой системы контроля;
43 – реле стартера;
44 – контакты 8-клеммных колодок жгута панели приборов и жгута переднего;
45 – контакты 21-клеммных колодок жгута панели приборов и жгута заднего;
46 – маршрутный компьютер;
47 – диагностический разъем.
В двигателе QG16DE применена система фазированного распределённого впрыска топлива. Это означает, что для каждого цилиндра используется своя топливная форсунка (распределённый впрыск), а впрыск топлива производится форсункой только того цилиндра, в котором впускные клапаны находятся в открытом положении (фазированный впрыск).
Количество впрыскиваемого топлива изменяется в зависимости от длительности электрического импульса, подаваемого на электромагнитный клапан форсунки с электронного блока управления двигателем (ЭБУ).
В общем случае электронная система управления двигателем выполняет следующие функции:
- управление моментом и длительностью впрыска топлива;
- управление временем накопления энергии в катушках зажигания и регулирование опережения зажигания;
- регулирование и поддержание оборотов холостого хода двигателя;
- управление электрическим бензонасосом;
- управление электрическими вентиляторами охлаждения радиатора;
- управление муфтой компрессора кондиционера;
- управление электромагнитным клапаном продувки адсорбера системы улавливания паров бензина;
- управление контрольной лампой “CHECK ENGINE” (Проверь двигатель);
- взаимодействие со штатной автомобильной противоугонной системой (АПС) или иммобилайзером;
- формирование диагностических кодов неисправностей и взаимодействие с внешним диагностическим прибором;
- формирование сигналов для маршрутного компьютера;
- комплексное управление двигателем/АКП для уменьшения толчков при переключении передач за счет снижения крутящего момента двигателя;
- аварийный режим работы, позволяющий продолжить движение при выходе из строя отдельных компонентов ЭСУД.
Выполнение этих функций блок управления осуществляет по результатам обработки контролируемых параметров. К ним относятся:
- положение коленчатого вала;
- положение распределительного вала;
- положение дроссельной заслонки;
- положение педали акселератора
- положение ручки парковка-нейтраль АКП;
- положение педали тормоза (от выключателя фонарей стоп-сигнала);
- массовый расход воздуха и его температура;
- температура охлаждающей жидкости;
- напряжение бортовой сети;
- скорость автомобиля;
- содержание кислорода в отработанных газах;
- наличие детонации;
- наличие сигнала на включение кондиционера;
- положение ключа в замке зажигания;
- пароль АПС (иммобилайзера) на разрешение запуска двигателя;
- давление хладагента;
- давление в гидроусилителе рулевого управления.
Структурная схема ЭСУД (входящие в её состав устройства) условного делится на 4 группы: электронный блок управления (контроллер), датчики, исполнительные устройства, вспомогательные устройства. Иногда в авто применяется бесконтактная система зажигания – структурная схема ниже:
1 – АКБ;
2 – Прерыватель зажигания;
3 – Реле прерывателя зажигания;
4 – Свечи ВАЗ;
5 – Электронный модуль зажигания;
6 – Электронный контроллер;
7 – Датчик, фиксирующий положения коленвала;
8 – Диск задающий.
Предохранители и реле ВАЗ 2110
F1 – 5А – Лампы фонарей освещения номерного знака. Лампы освещения приборов. Контрольная лампа габаритного света. Лампа освещения багажника. Лампы габаритного света левого борта;
F2 – 7,5А – Левая фара (ближний свет);
F3 – 10А – Левая фара (дальний свет);
F4 – 10А – Правая противотуманная фара;
F5 – 30А – Электродвигатели стеклоподъемников дверей;
F6 – 15А – Переносная лампа;
F7 – 20А – Электродвигатель вентилятора системы охлаждения двигателя. Звуковой сигнал;
F8 – 20А – Элемент обогрева заднего стекла. Реле (контакты) включения обогрева заднего стекла;
F9 – 20А – Клапан рециркуляции. Очистители и омыватели ветрового стекла и фар. Реле (обмотка) включения обогрева заднего стекла;
F10 – 20А – Резервный;
F11 – 5А – Лампы габаритного света правого борта;
F12 – 7,5А – Правая фара (ближний свет);
F13 – 10А – Правая фара (дальний свет). Контрольная лампа включения дальнего света;
F14 – 10А – Левая противотуманная фара;
F15 – 20А – Электрообогрев сидений. Блокировка замка багажника;
F16 – 10А – Реле-прерыватель указателей поворота и аварийной сигнализации (в режиме аварийной сигнализации). Контрольная лампа аварийной сигнализации;
F17 – 7,5А – Лампа освещения салона. Лампа индивидуальной подсветки. Лампа подсветки выключателя зажигания. Лампы стоп-сигнала. Часы (или маршрутный компьютер);
F18 – 25А – Лампа освещения вещевого ящика. Контроллер отопителя. Прикуриватель;
F19 – 10А – Блокировка замков дверей. Реле контроля исправности ламп стоп-сигнала и габаритного света. Указатели поворота с контрольными лампами. Лампы света заднего хода. Обмотка возбуждения генератора. Блок индикации бортовой системы контроля. Комбинация приборов. Часы (или маршрутный компьютер);
F20 – 7,5А – Лампы задних противотуманных фонарей.
К1 – реле контроля исправности лампочек;
К2 – реле передних дворников;
K3 – реле-прерыватель повторителей и аварийной сигнализации;
К4 – реле включения ближнего света;
К5 – реле включения дальнего света;
К6 – дополнительное реле;
К7 – реле включения обогрева заднего стекла;
K8 – резервное реле.






