В настоящее время, среди сигнализаций с обратной связью, относящихся к среднему классу, в полной мере обеспечивающих решение поставленных по сохранению безопасности задач, неплохо себя зарекомендовала система «Шериф» (Sheriff), которая, кроме всего прочего, привлекает автолюбителей рядом дополнительных функций (например, наличием блокировки радиометкой и возможностью автозапуска), а также доступной ценой и простотой монтажа при установке.
Большинство систем автосигнализации, предлагаемых на современном рынке, сопровождаются довольно подробными инструкциями, между тем, в каждом конкретном случае, занимаясь проблемой как подключить сигнализацию шериф, приходиться учитывать множество, достаточно важных, нюансов.
Установку любой автосигнализации, как правило, начинают с выбора места для основного управляющего блока. Практика показывает, что удобнее всего для этих целей использовать отсек за «бардачком» или свободное место под блоком управления вентиляцией и отопления.
От попытки пристроить данный блок в двигательном отсеке лучше всего отказаться. Мало того, что там существует повышенный риск попадания влаги и прочих агрессивных жидкостей – в двигательном отсеке имеется множество комплектующих, способных создать помеху радиосигналу, а это, в свою очередь, ведет к уменьшению радиуса действия системы и создает условия для ложных срабатываний.
В выбранном месте блок крепиться поставляемыми в комплекте винтами или с помощью специальных растяжек. Что касается двигательного отсека, то гораздо уместнее в нем установить сирену, при этом такое место должно быть не слишком доступным извне, удаленным от подвижных элементов и защищенным от попадания влаги.
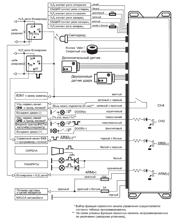
При установке концевого выключателя капота не следует забывать, что закреплять его необходимо на металлической поверхности, надежно соединенной с общей «массой» автомобиля, при этом при нажимании и закрытии капота шток концевика должен перемещаться не менее чем на 6мм, а при открытии – полностью подниматься.
Датчик удара лучше всего закрепить на твердой поверхности перемычки между двигательным отсеком и салоном (со стороны салона).
Светодиод размещают так, чтобы он максимально отвечал своему основному предназначению, то есть как можно раньше предупреждал потенциального злоумышленника о наличии и включенном состоянии охранной системы.
Особенно трепетного к себе отношения требует кнопка Valet, которая после установки должна быть одновременно скрыта от глаз и в то же время, максимально доступной для водителя.
Для подсоединения отдельных комплектующих системы сигнализации вам придется проделать в салоне определенный объем работ: сделать выводы провода от замка зажигания (на котором появляется напряжение +12V при включении зажигания), протянуть провода, идущие в салон от сирены и концевого выключателя капота (а возможно и багажника), сделать надежный отвод от ближайшей «массы».
При установке такой системы, возможно, придется разрезать штатную приводку управления электроприводами управления замками дверей. Как правило, эти провода проложены от основного запирающего (отпирающего) переключателя к дополнительным переключателям и далее – к электроприводам замков. Для нормального функционирования охранной системы провод, идущий к основному переключателю соединяется с зеленым проводом системы, а идущий к электроприводам – с желтым.
Прилагаемая в комплекте схема подключения автосигнализации дает полную информацию о цветной маскировке проводов и местах их подключения. Единственное, на что следует обратить внимание, это на защиту проводов с помощью специальных гофрированных трубок и изоляционной ленты, а также надежной их фиксации кабельными стяжками.
Полная схема включения автомобильной сигнализации Sheriff
На заключительном этапе установки системы на максимальную длину растягивается провод антенны, который закрепляют с помощью крепежных стяжек в месте, где его сложно случайно повредить. Обращается внимание, что во избежание паразитных наводок категорически запрещаться обматывать антенным кабелем токопроводящие жгуты и отдельные провода. Мануал подойдет для следующих моделей:
- Sheriff ZX-1095
- Sheriff ZX-945
- Sheriff ZX-935
- Sheriff ZX-755
- Sheriff APS 2400
- Sheriff APS-35PRO Platinum2
- Sheriff ZX-750
- Sheriff ZX-1070
- Sheriff ZX-1055
- Sheriff ZX-1060
- Sheriff APS-35PRO Platinum1
- Sheriff ZX-940
- Sheriff ZX-1090
- Sheriff ZX-725 ver.2
- Sheriff ZX-925 ver.2
- Sheriff ZX-910 ver.2
- Sheriff Lady ZX-800
- Sheriff ZX-710 ver.2
- Sheriff ZX-1050
- Sheriff ZX-600 ver.2
- Sheriff ZX-625
- Sheriff APS-35PRO
- Sheriff APS-25PRO
- Sheriff APS-2600
- Sheriff APS-2625
- Sheriff APS-2500
- Sheriff ZX-950
- Sheriff ZX-930
- Sheriff ZX-900v2
- Sheriff ZX-700
- Sheriff ZX-730
- Sheriff PRO-9250
- Sheriff APS-35PRO Silver
- Sheriff APS-2600 Ver.2
- Sheriff APS-2500 Ver.2
- ff APS-35PRO Ruby
